Опис
Продаж 3 кім., квартири по вул. Мечникова, 20. м. Львів.
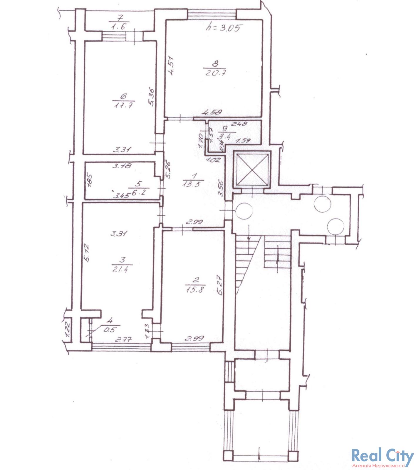
Квартира світла затишна в елітній новобудові на 1-му високому поверсі шести поверхового будинку, не при дорозі, будинок заселений, нульовий цикл, індивідуальне опалення.
В квартирі: двохфункційний котел, зроблений розпуск світла і опалення з радіаторами.
Проща квартири: загальна 100,3 м2, кухня 15,9 м2, житлова 62,8 м2.
Ціна: 1м2-1500$.
АН “RealCity”
Більше інформації по телефону.
Завжди раді допомогти Вам у пошуку житла.
Перегляди: 315

(067)146-19-94
(093)008-51-15









